LARGO SAN FRANCESCO - AMPIO TRIVANI - LIBERO SUBITO
prezzo
218.000
piano
Terzo
superficie
131 mq
locali
3
bagni
1
Largo San Francesco, 15 - Manfredonia
zona Centro storico
descrizione
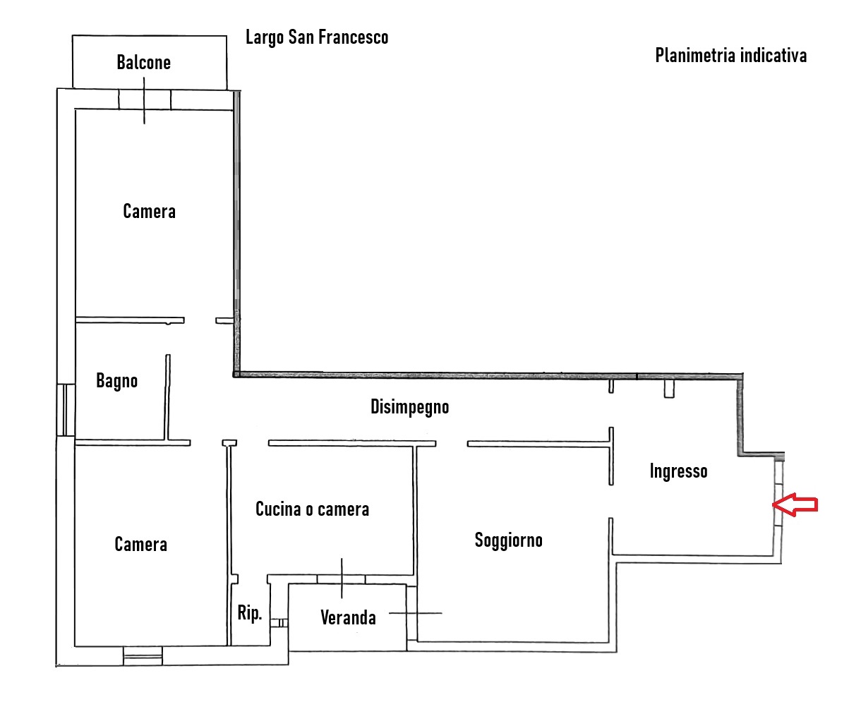
In Largo San Francesco, nel centro di Manfredonia (FG)
Proponiamo in vendita un ampio appartamento trilocale
situato al terzo piano (intermedio) di uno stabile dotato di ascensore.
L'immobile, di circa 131 mq, è composto da:
- ampio ingresso
- soggiorno
- cucina abitabile
- ripostiglio
- 2 camere da letto
- bagno
- balconi con affaccio sul Largo San Francesco e con parziale vista mare
- verandina
Tripla esposizione
Libero subito
Possibilità di acquistare l'appartamento adiacente, per creare un'unica ampia unità immobiliare, con prezzo a parte da concordare.
Zona Centrale, servita e comoda a tutti i principali servizi.
Molti altri dettagli in ufficio
riferimento: BG_932
Tutte le informazioni, foto e planimetrie contenute nel presente annuncio pubblicitario non costituiscono elemento contrattuale: potrebbero non rispecchiare fedelmente lo stato di fatto dell'immobile e andranno verificate prima di formulare la proposta di acquisto o di locazione. L'agenzia immobiliare non risponde di eventuali discordanze.
Proponiamo in vendita un ampio appartamento trilocale
situato al terzo piano (intermedio) di uno stabile dotato di ascensore.
L'immobile, di circa 131 mq, è composto da:
- ampio ingresso
- soggiorno
- cucina abitabile
- ripostiglio
- 2 camere da letto
- bagno
- balconi con affaccio sul Largo San Francesco e con parziale vista mare
- verandina
Tripla esposizione
Libero subito
Possibilità di acquistare l'appartamento adiacente, per creare un'unica ampia unità immobiliare, con prezzo a parte da concordare.
Zona Centrale, servita e comoda a tutti i principali servizi.
Molti altri dettagli in ufficio
riferimento: BG_932
Tutte le informazioni, foto e planimetrie contenute nel presente annuncio pubblicitario non costituiscono elemento contrattuale: potrebbero non rispecchiare fedelmente lo stato di fatto dell'immobile e andranno verificate prima di formulare la proposta di acquisto o di locazione. L'agenzia immobiliare non risponde di eventuali discordanze.
caratteristiche
BG_932
Appartamento
Vendita
€ 218.000
3
131 mq
Terzo su 6
da ristrutturare
libero subito
-
composizione interna
Singolo
Abitabile
2
1
Si
No
Tripla
Autonomo
pertinenze
Nessuna pertinenza
parti comuni
Condominio
Buone condizioni
6
€
Si
No